- Home
- Couplings
- Elastomer Jaw Couplings TNS SDDL-5
Key Characteristics of the Elastomer Jaw Couplings TNS SDDL-5
It balances angular, radial, and axial shaft misalignments, transferring torque via elastic buffers of synthetic rubber (Pb) or polyurethane (VkR). The oil-resistant elastic intermediate ring cushions impacts and torsional vibrations, while Perbunan rings are electrically conductive.
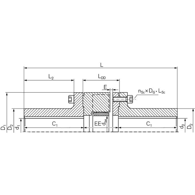
- The coupling is available in 10 sizes, making it suitable for various applications.
- It supports a maximum bore diameter for both d1 and d2, ranging from 45 to 160 mm, accommodating different shaft sizes.
- The outer diameter of the coupling ranges from 105 to 400 mm, ensuring compatibility with a variety of equipment sizes.
- Its overall length ranges from 272 to 625 mm, allowing for adaptability in different spatial setups.
- The coupling can operate at maximum rotational speeds ranging from 1,900 to 7,250 RPM, ensuring efficient performance in both moderate and high-speed applications.
- It has a torque capacity ranging from TKN 130 to 8,900 Nm, making it capable of handling a wide spectrum of loads, from lighter applications to more demanding heavy-duty operations.
>>> Learn more about Application of Elastomer Jaw Couplings
Product Specifications of TNS SDDL-5 Elastomer Jaw Couplings
TNS SDDL-5 Catalogue | TNS SDDL-5 Installation Instruction |
![]() | ![]() |
Identifier | Size Coupling | TKN | Dimensions [mm] | Gwub | ||||
TNS SDDL-5 | Nm | d1;d2kmax | D1 | D2 | L | L2 | [kg] | |
WS0710-L | TNS SDDL-5 100 | 130 | 45 | 105 | 65 | 272 | 98,5 | 8,5 |
WS0712-L | TNS SDDL-5 125 | 250 | 55 | 126 | 80 | 278 | 96,5 | 13,1 |
WS0714-L | TNS SDDL-5 145 | 400 | 65 | 145 | 92 | 288 | 93,5 | 18,5 |
WS0717-L | TNS SDDL-5 170 | 630 | 75 | 170 | 110 | 348 | 123,5 | 29,7 |
WS0720-L | TNS SDDL-5 200 | 1100 | 95 | 200 | 135 | 417 | 153,5 | 51,3 |
WS0723-L | TNS SDDL-5 230 | 1700 | 110 | 230 | 160 | 421 | 150 | 71,4 |
WS0726-L | TNS SDDL-5 260 | 2650 | 125 | 260 | 180 | 516 | 183,5 | 110,5 |
WS0730-L | TNS SDDL-5 300 | 3900 | 140 | 300 | 200 | 533 | 183,5 | 147,8 |
WS0736-L | TNS SDDL-5 360 | 6500 | 160 | 360 | 225 | 625 | 220,5 | 228,5 |
WS0740-L | TNS SDDL-5 400 | 8900 | 160 | 400 | 225 | 625 | 220,5 | 246,3 |
Why Choose Ringfeder Elastomer Jaw Couplings TNS SDDL-5?
By virtue of the rotational resilience of the coupling, dangerous torsional vibrations from the operational range of plant machinery can be transferred to rotational speed ranges in which no negative effects are to be expected.
Dai Hong Phat Corp specializes in supplying Ringfeder TNS SDDL-5 Couplings across Vietnam.
We ensure that our couplings are 100% genuine, brand new, and come with certificates and clear origins.
With 15 years of industry experience, Dai Hong Phat Corp is dedicated to providing high-quality Ringfeder TNS SDDL-5 couplings at competitive prices. We maintain a substantial inventory to ensure goods are available in large quantities.
---------------------------------------------------------------------------------------
Contact Dai Hong Phat Corp today to learn more!!
🌐 Website: https://ringfeder.com.vn/ - https://daihongphat.asia/
📞 Hotline: 0906 955 057 | Zalo: +84906 955 057
📧 Email: info@dhp-corp.com.vn
Facebook Ringfeder Vietnam: https://www.facebook.com/ringfedervietnam/
Facebook Dai Hong Phat Corp: https://www.facebook.com/khopnoitrucdaihongphat
Featured Products
Related Products

